$ 1
–
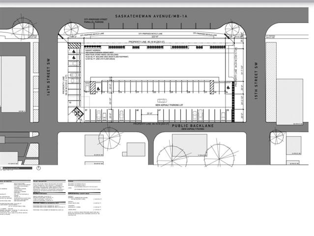
1525 Saskatchewan Avenue
This listing presented by
Rick and Karl Jansen
. Contact Rick by phone:
(204) 797-7164
or email direct
here
.
Overview
Map & Nearby
Street View
Print
Download
Contact Agent
Listing Info
MLS® Number
202514896
Property Type
Industrial/Comm/Investmnt
List Price
$1
Listing Status
Active
Ownership
Other - Remarks
Place Nearby
(within radius 1.5 km)
Contact Agent
Download
Print